Thomas E Graul, AIA

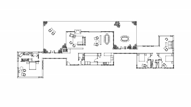
Beach House
Long Island, New York

These sketches illustrate a proposal for a vacation home where two private sleeping wings are arranged around a large living area in a central pavilion.

Beach House
all drawings by T Graul
sport blue 6s Louis Vuitton Outlet kate spade outlet Michael Kors Outlet michael kors outlet sport blue 6s jordan 3 wolf grey jordan 6 sport blue wolf grey 3s sport blue 3s Louis Vuitton Outlet louis vuitton outlet Louis Vuitton Outlet sport blue 6s kate spade outlet kate spade outlet kate spade outlet michael kors outlet kate spade outlet michael kors outlet